住宅情報検索

印刷

ビレッジハウス大須賀第二1号棟 詳細情報

情報更新日 : 2025年08月06日

住宅名 ビレッジハウス大須賀第二1号棟

 

収入計算シート収入計算シート 使い方
住所 〒437 - 1304
静岡県掛川市西大渕4101-2
建物種別 集合住宅
最寄駅・バス停からの交通手段 JR東海道本線 袋井駅 バス24分 静岡鉄道バス西田町停留所下車 最寄駅・バス停からの徒歩による所要時間 4 分
構造 RC造 総戸数 40 戸
階数 地上 5 階   地下 0 階建  新築着工年月日・築年数 1984年02月23日 築42年
問い合わせ先/
電話番号
レジデンシャル・サービス・ジャパン株式会社/
0120-830-415
入居対象者の条件 要配慮者を拒まない(一般世帯も可)
入居状況 入居不可 入居可能時期

あんしん ・・・あんしん居住推進事業の補助を活用したもの  住宅SN ・・・住宅セーフティネット事業の補助を活用したもの 
高齢者 ・・・高齢者世帯  障害者 ・・・障害者等世帯  子育て ・・・子育て世帯  収入基準あり ・・・収入基準あり  低所得 ・・・所得(月あたりの収入)が214,000円を超えない者 
※ 地域によって対象世帯が追加されている場合があります。

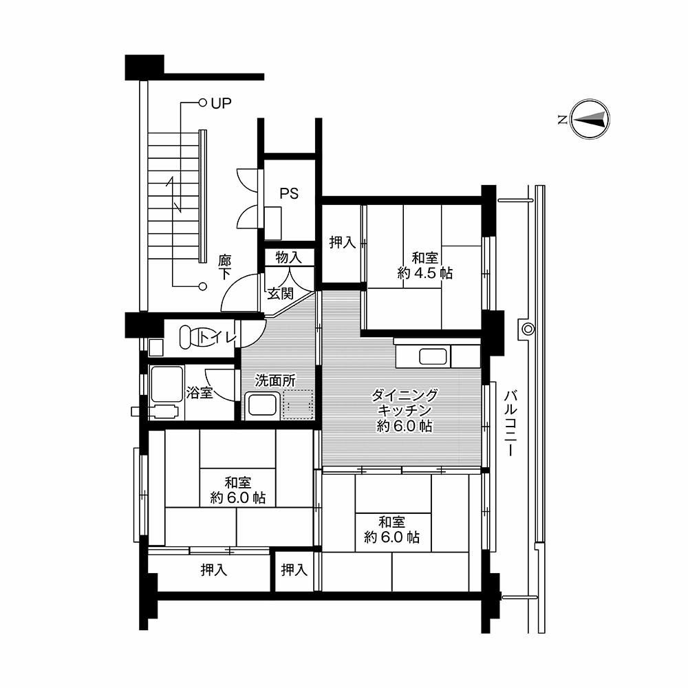
住戸番号 202
間取り 3DK・2LDK
開口部の方位
住戸面積 54.6 m2
改修工事の工事完了日
(予定含む)
2017年06月30日
月額家賃 *****円
敷金 *****円
共益費・管理費 *****円
敷金以外の一時金 名目
金額
住宅設備の有無 水洗便所 あり 専用
洗面設備 あり 専用
台所 あり 専用
浴室 あり 専用
収納 あり 専用
エアコン なし
室内洗濯機置場 あり 専用
バリアフリー
性能
二カ所以上の
手すり設置の有無
あり 専用
屋内の段差解消の有無
車いすで通行可能な廊下幅の有無
エレベーターの
有無
なし
洋式便所の有無 あり 専用
耐震性能 着工日が昭和56年 6月1日以降
耐震診断及び耐震改修の実施
その他の
性能
省エネルギー性能
(窓の断熱化など)
防音・遮音性能
安全対策(事故防止設備など)
PR情報など